Mengapa Desain Rumah Minimalis Sangat Cocok di Bukittinggi?
Desain rumah minimalis kini menjadi pilihan favorit masyarakat urban dan semi-urban, termasuk di Bukittinggi, Sumatera Barat. Kota yang terkenal dengan udara sejuk dan kontur tanah berbukit ini sangat cocok untuk bangunan hemat ruang namun tetap fungsional. Dengan lahan yang terbatas, desain rumah minimalis memberikan solusi estetika, efisiensi biaya, dan kenyamanan yang maksimal.

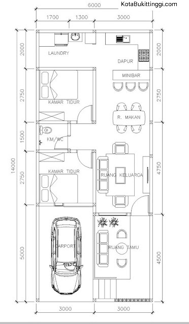
Spesifikasi Desain Rumah Minimalis Modern

Berdasarkan gambar desain yang Anda lihat di atas, rumah ini merupakan rumah tipe 60 dengan total luas bangunan sekitar 60 m² dan lebar lahan 6 meter. Berikut detail denah dan fitur utama:

Denah dan Ruang:
- 2 kamar tidur
- 1 kamar mandi
- Ruang tamu dan ruang keluarga menyatu
- Dapur modern + minibar
- Ruang makan
- Laundry area
- Carport untuk 1 mobil
- Taman kecil di depan rumah
Gaya Arsitektur:
- Menggunakan konsep minimalis modern dengan atap pelana dan list bangunan yang bersih
- Warna dominan putih dan abu-abu dengan sentuhan batu bata roster di bagian fasad
- Pencahayaan alami maksimal dengan bukaan jendela besar

Estimasi Biaya Bangun Rumah di Bukittinggi Tahun 2026
Harga Bangun per Meter Persegi:
- Rata-rata biaya jasa kontraktor di Bukittinggi saat ini berkisar di Rp5.000.000/m² untuk standar kualitas menengah hingga tinggi.
Harga Tanah:
- Rata-rata harga tanah di area strategis Bukittinggi per tahun 2025 diperkirakan Rp4.000.000/m².
Luas Lahan:
- Luas tanah: 6m x 15m = 90 m²
- Luas bangunan: 60 m²
Rincian Estimasi:
- Biaya Beli Tanah: 90 m² x Rp4.000.000 = Rp360.000.000
- Biaya Bangun Rumah: 60 m² x Rp5.000.000 = Rp300.000.000
Total Estimasi Biaya Hingga Jadi:
Rp360.000.000 + Rp300.000.000 = Rp660.000.000
Catatan: Biaya di atas belum termasuk biaya IMB, desain arsitek (jika tidak pakai template), pemasangan pagar, dan interior custom.

Keunggulan Rumah Minimalis Seperti Ini:
1. Hemat Biaya dan Waktu Pembangunan
Desain simpel dan efisien memudahkan proses pembangunan serta mengurangi risiko pembengkakan biaya.
2. Mudah Disesuaikan dengan Gaya Hidup Modern
Dengan ruang terbuka dan multifungsi, desain ini cocok untuk pasangan muda atau keluarga kecil.
3. Tampilan Elegan dan Tidak Ketinggalan Zaman
Sentuhan modern membuat rumah tetap relevan dalam jangka panjang.
Tips Jika Ingin Membangun Rumah Minimalis di Bukittinggi
Pilih Lokasi Strategis
Pastikan akses ke fasilitas umum seperti sekolah, pasar, dan tempat ibadah mudah dijangkau.
Gunakan Jasa Arsitek Lokal
Mereka lebih paham kondisi tanah, iklim, dan estetika lokal Minangkabau.
Pertimbangkan Sirkulasi Udara
Bukittinggi dikenal dengan udara yang sejuk. Desain ventilasi silang dapat membuat rumah semakin nyaman tanpa perlu AC.
Pilih Material Tahan Lembab
Karena curah hujan cukup tinggi, gunakan material seperti atap zincalume, keramik antislip, dan cat dinding waterproof.
Mengapa Memilih Desain Rumah Minimalis di Bukittinggi?
Bukittinggi dikenal sebagai kota yang sejuk dengan tata kota yang terus berkembang. Gaya hidup masyarakat yang praktis dan modern membuat desain rumah minimalis semakin digemari. Selain tampilannya yang simpel dan elegan, rumah minimalis juga mudah disesuaikan dengan lahan sempit yang banyak dijumpai di kawasan perkotaan seperti Aur Kuning, Belakang Balok, hingga Mandiangin.
Ditambah lagi, biaya pembangunan rumah minimalis tergolong lebih terjangkau dibandingkan desain rumah mewah lainnya. Jika Anda memiliki lahan terbatas namun ingin rumah nyaman dan fungsional, maka pilihan desain seperti yang ditampilkan di atas sangat ideal untuk dijadikan inspirasi.
Tips Memilih Kontraktor Bangunan di Bukittinggi
Setelah menemukan desain rumah minimalis yang sesuai, langkah berikutnya adalah memilih kontraktor bangunan terpercaya di Bukittinggi. Pastikan Anda memilih jasa kontraktor lokal yang memiliki portofolio proyek serupa, memahami kondisi tanah dan iklim cuaca Bukittinggi, serta memberikan penawaran harga transparan.
Anda bisa meminta estimasi RAB (Rencana Anggaran Biaya) terlebih dahulu sebelum memulai pembangunan. Jangan ragu untuk membandingkan beberapa penyedia jasa dan baca ulasan pelanggan sebelumnya. Ingat, memilih kontraktor yang tepat akan berdampak langsung pada kualitas rumah dan ketepatan waktu pembangunan.
Arsitektur Tradisional Minangkabau

Salah satu inovasi desain yang kini mulai diminati di Bukittinggi adalah penggabungan konsep minimalis modern dengan elemen arsitektur tradisional Minangkabau, khususnya pada bagian atap. Penggunaan atap bergonjong pada bangunan minimalis tidak hanya berfungsi sebagai identitas budaya, tetapi juga memberikan kesan megah dan elegan yang unik. Dengan bentuk atap yang melancip dan dinamis, rumah tipe kecil sekalipun akan terlihat lebih berkarakter dibandingkan dengan desain atap pelana atau perisai standar, sehingga menciptakan harmoni antara nilai-nilai warisan leluhur dan gaya hidup kontemporer.
Secara teknis, adaptasi atap gonjong pada rumah gadang minimalis di lahan terbatas dapat dilakukan dengan menyederhanakan sudut kelengkungan agar tetap proporsional dengan fasad bangunan yang bersih. Penggunaan material modern seperti baja ringan dan seng metal berpasir atau bitumen dapat menjadi solusi untuk menjaga struktur tetap kokoh namun tetap menonjolkan estetika tradisional. Desain ini juga sangat mendukung sirkulasi udara yang lebih baik karena volume ruang di bawah atap cenderung lebih tinggi, sangat cocok dengan iklim sejuk Bukittinggi yang membutuhkan ventilasi alami optimal demi kenyamanan penghuni tanpa harus bergantung pada pendingin ruangan.
Kelebihan Desain Rumah Minimalis untuk Iklim Bukittinggi
Salah satu alasan mengapa rumah minimalis cocok untuk Bukittinggi adalah karena bentuknya yang kompak dan hemat energi. Dengan sirkulasi udara yang baik serta penggunaan material yang efisien, rumah seperti ini mampu menjaga suhu tetap nyaman, baik di musim panas maupun saat cuaca dingin di malam hari.
Bukittinggi yang dikenal berhawa sejuk membuat penggunaan jendela besar dan ventilasi alami menjadi nilai tambah yang sangat menguntungkan. Selain itu, perawatan rumah minimalis juga lebih mudah, sehingga ideal untuk keluarga muda maupun lansia yang menginginkan hunian praktis namun tetap estetik.
Strategi Menghemat Biaya Bangun Rumah Minimalis di Bukittinggi
Untuk Anda yang memiliki anggaran terbatas, ada beberapa strategi yang bisa diterapkan agar tetap bisa membangun rumah impian di Bukittinggi.
Pertama, pilih desain rumah 1 lantai dengan layout terbuka agar hemat struktur dan material.
Kedua, gunakan material lokal seperti batu alam atau bata press dari Sumatera Barat yang lebih murah namun tetap berkualitas.
Ketiga, hindari perubahan desain di tengah proses pembangunan karena hal ini akan memicu tambahan biaya.
Anda juga bisa bekerja sama dengan arsitek lokal yang memahami efisiensi desain serta menyesuaikan anggaran dengan kebutuhan.
Masukan Jika Ingin Bangun Rumah Minimalis di Bukittinggi
Desain rumah minimalis di Bukittinggi seperti contoh pada gambar ini merupakan pilihan cerdas dan terjangkau untuk masyarakat yang ingin memiliki hunian nyaman, modern, dan efisien. Dengan estimasi biaya total sekitar Rp660 juta, Anda sudah bisa memiliki rumah 2 kamar tidur dengan fasilitas lengkap di lokasi strategis. Tetapi perlu diingat, Harga tanah di Kota Bukittinggi sangat mahal, berkisar antara 3juta rupiah hingga 5juta / meter persegi.
Untuk inspirasi desain lainnya dan info seputar properti di Bukittinggi, kunjungi www.kotabukittinggi.com atau hubungi kami untuk rekomendasi arsitek dan kontraktor lokal terpercaya.








